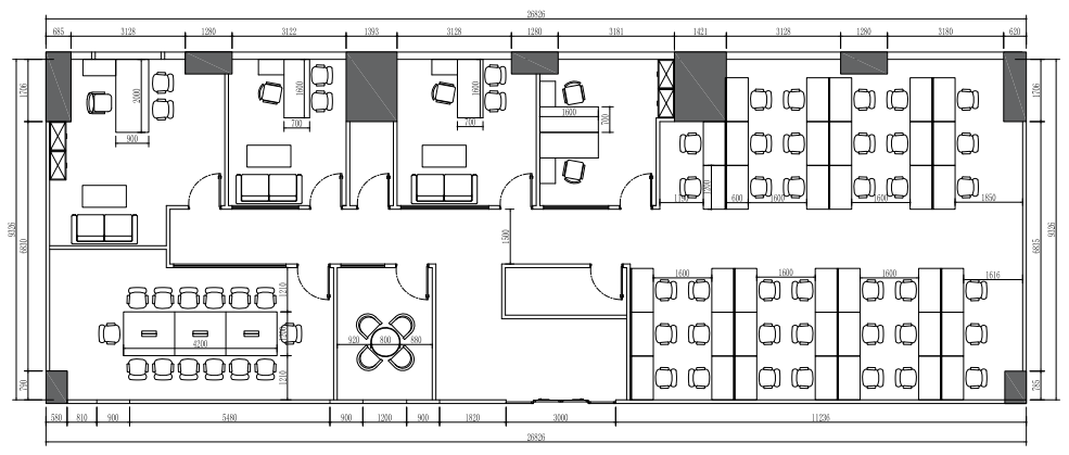
成都世茂大厦13楼,面积396.82㎡
项目地址:成都市成华区猛追湾横街99号
招商热线:028-88855955
项目简介:位于成都市一环内,配套商业及酒店,世茂自持运营,成都市甲级商务写字楼
项目交通:双地铁,3号线红星桥站,地铁6号线建设北路站
租金70元/平米/月(含税9%)
物业费23元/平米/月(含税6%)
房源情况:精装修,格局7个隔间(含会议室)+45个开放工位,可配家具



成都世茂大厦由世茂集团重金打造,将成为成华区猛追湾休闲商务核心的顶级商办综合体,定格北成都的地标项目。总体量约11万平方米,由36000平方米世茂茂御酒店、15000平方米52+商业和47000平方米的甲级写字楼组成。
项目位于成都市成华区建设北路,地铁3号线、6号线沿线,紧邻春熙路-盐市口商圈和建设路商圈,主干道接驳一环路、二环路及G5京昆高速。280米通达地铁3号线红星桥站,10分钟步行至未来开通的地铁6号线,2站地铁至城市核心商圈春熙路-太古里。此外,项目紧邻成华区政务中心、成华区图书馆、市民健身中心、成华公园、活水公园等政务文化配套。